A Cozy Patio

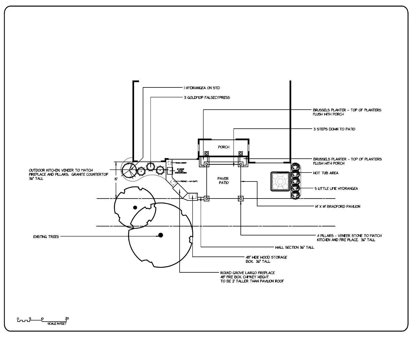
This cozy patio features a charming pavilion, a crackling fireplace, a fully equipped outdoor kitchen, and a steaming hot tub, creating an inviting retreat for relaxation and entertaining.

Previous
Previous

Ultimate Paradise

Next
Next

Mid-Century Modern